DOMY CAŁOROCZNE

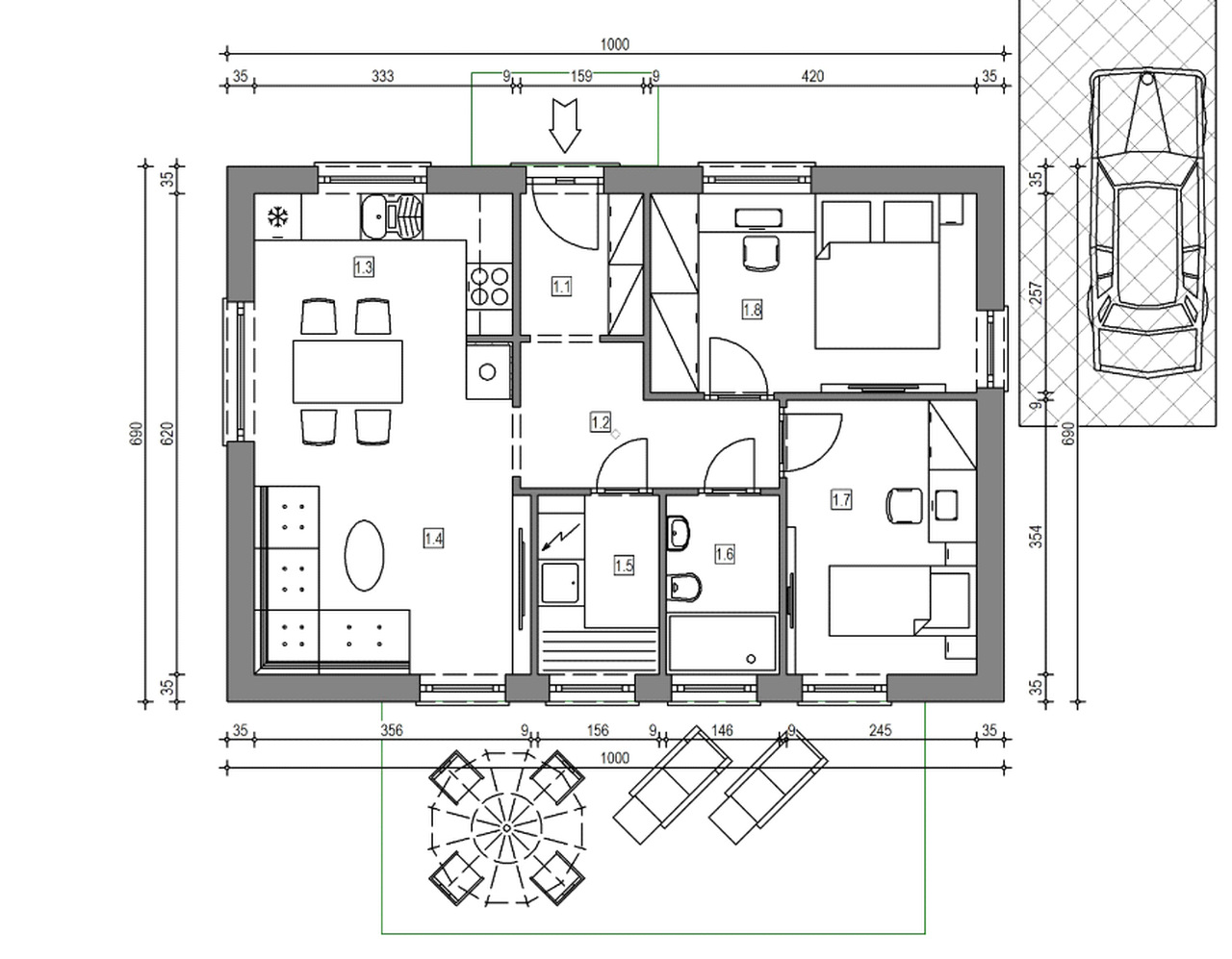
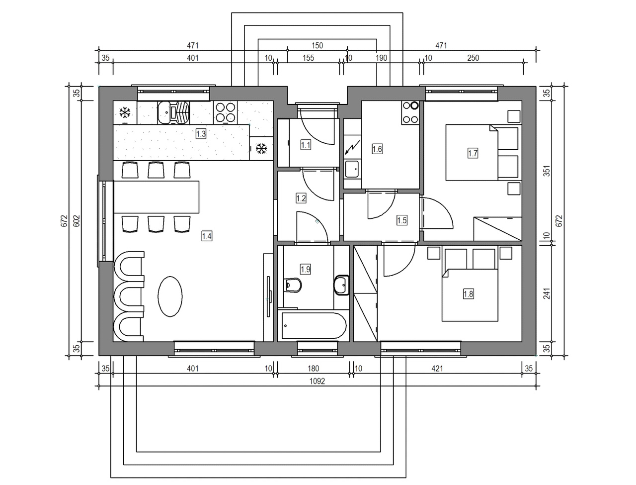
DOMEK NA MINIMALNEJ 54

Powierzchnia użytkowa domu 54m2

WERSJA STANDARD

I: Fundament
⦁ Wykonanie wykopu pod fundament
⦁ Wylanie ław fundamentowych.
⦁ Wykonanie ścian fundamentowych
⦁ Zasypka piaskowa
⦁ Chudy beton
⦁ Kanalizacja

II: Ściany zewnętrzne:
⦁ płyta farmacell
⦁ tynk silikatowo silikonowy
⦁ klej ,siatka zbrojąca
⦁ wełna
⦁ konstrukcja -drewno 4- stronnie strugane 4,5x 14,5
⦁ docieplenie: 15mm wełny mineralnej
⦁ paroizolacja
⦁ stolarka okienna PCV 3 szybowa
⦁ drzwi zewnętrzne
⦁ parapety zewnętrzne stalowe powlekane w kolorze dachu.

III: Ściany wewnętrzne
⦁ drewniana konstrukcja ścian działowych 4,5x 9.5mm

IV: Dach
⦁ blachodachówka
⦁ łaty i kontrłaty
⦁ folia paroprzepuszczalna
⦁ konstrukcja drewniana /wg projektu/
⦁ wełna mineralna 30cm w przestrzeni między belkami
⦁ paroizolacja
⦁ Orynnowanie PCV
⦁ komin murowany systemowy (elewacja z blachy)

cena : 190 tys brutto

WERSJA PREMIUM

I: Fundament
⦁ Wykonanie wykopu pod fundament
⦁ Wylanie ław fundamentowych.
⦁ Wykonanie ścian fundamentowych
⦁ Zasypka piaskowa
⦁ Chudy beton
⦁ Kanalizacja

II: Ściany zewnętrzne:
⦁ podwaliny
⦁ tynk silikatowo silikonowy
⦁ klej ,siatka zbrojąca
⦁ wełna
⦁ płyta farmacell
⦁ konstrukcja -drewno 4- stronnie strugane 4,5x 14,5
⦁ docieplenie: 15mm wełny mineralnej
⦁ paroizolacja
⦁ ruszt w nim instalacje
⦁ plyta KG
⦁ stolarka okienna PCV 3 szybowa
⦁ drzwi zewnętrzne
⦁ parapety zewnętrzne stalowe powlekane w kolorze dachu
⦁ parapety wewnętrzne drewniane

III: Ściany wewnętrzne
⦁ drewniana konstrukcja ścian działowych 4,5x 9.5mm
⦁ płyt gipsowo-kartonowe (bez szpachlowania i malowania)
⦁ izolacją z wełny

IV: Dach
⦁ blachodachówka
⦁ łaty i kontrłaty
⦁ folia paroprzepuszczalna
⦁ konstrukcja drewniana /wg projektu/
⦁ wełna mineralna 30cm w przestrzeni między belkami
⦁ paroizolacja
⦁ ruszt
⦁ płyta KG
⦁ Orynnowanie PCV
⦁ komin murowany systemowy (elewacja z blachy)

cena 279tys brutto

DODATKOWE INFORMACJE

INSTALACJA ELEKTRYCZNA z kompletną skrzynką bezpiecznikową, na każde większe pomieszczenie przewidziane w cenie są 3 gniazdka, załącznik i punkt świetlny, instalację dzwonkową i jedno oświetlenie zewnętrzne nad wejściem.

INSTALACJA WODNO KANALIZACYJNA bez białego montażu, instalacja obejmuje zasilanie w wodę ciepłą i zimną oraz odpływy

WYLEWKA CEMENTOWA PARTERU OCIEPLONA na ociepleniu poziomym 15 cm

INSTALACJE CENTRALNEGO OGRZEWANIA rozprowadzenie rurek do grzejników z rozdzielacza plus piec grzewczy

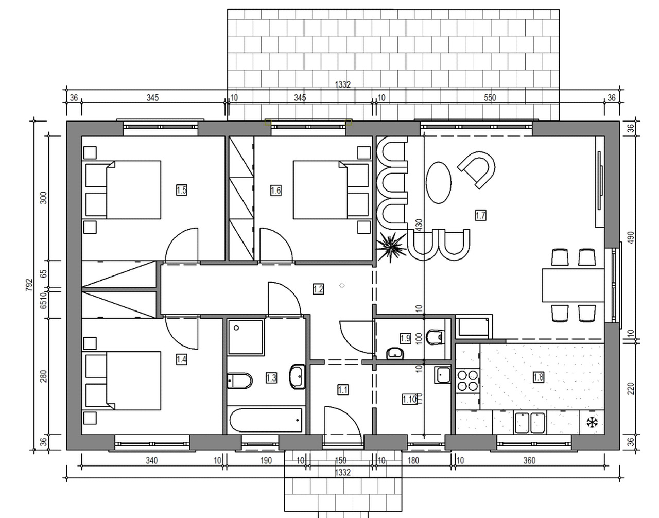
DOMEK NIE DUZY MIKRO 89

Powierzchnia użytkowa 89m2

WERSJA STANDARD

I: Fundament
⦁ Wykonanie wykopu pod fundament
⦁ Wylanie ław fundamentowych.
⦁ Wykonanie ścian fundamentowych
⦁ Zasypka piaskowa
⦁ Chudy beton
⦁ Kanalizacja

II: Ściany zewnętrzne:
⦁ płyta farmacell
⦁ tynk silikatowo silikonowy
⦁ klej ,siatka zbrojąca
⦁ wełna
⦁ konstrukcja -drewno 4- stronnie strugane 4,5x 14,5
⦁ docieplenie: 15mm wełny mineralnej
⦁ paroizolacja
⦁ stolarka okienna PCV 3 szybowa
⦁ drzwi zewnętrzne
⦁ parapety zewnętrzne stalowe powlekane w kolorze dachu

III: Ściany wewnętrzne
⦁ drewniana konstrukcja ścian działowych 4,5x 9.5mm

IV: Dach
⦁ blachodachówka
⦁ łaty i kontrłaty
⦁ folia paroprzepuszczalna
⦁ konstrukcja drewniana /wg projektu/
⦁ wełna mineralna 30cm w przestrzeni między belkami
⦁ paroizolacja
⦁ Orynnowanie PCV
⦁ komin murowany systemowy (elewacja z blachy)

cena : 275tys netto plus 8%vat

WERSJA PREMIUM

I: Fundament
⦁ Wykonanie wykopu pod fundament
⦁ Wylanie ław fundamentowych.
⦁ Wykonanie ścian fundamentowych
⦁ Zasypka piaskowa
⦁ Chudy beton
⦁ Kanalizacja

II: Ściany zewnętrzne:
⦁ podwaliny
⦁ tynk silikatowo silikonowy
⦁ klej ,siatka zbrojąca
⦁ wełna
⦁ płyta farmacell
⦁ konstrukcja -drewno 4- stronnie strugane 4,5x 14,5
⦁ docieplenie: 15mm wełny mineralnej
⦁ paroizolacja
⦁ ruszt w nim instalacje
⦁ plyta KG
⦁ stolarka okienna PCV 3 szybowa
⦁ drzwi zewnętrzne
⦁ parapety zewnętrzne stalowe powlekane w kolorze dachu
⦁ parapety wewnętrzne drewniane

III: Ściany wewnętrzne
⦁ drewniana konstrukcja ścian działowych 4,5x 9.5mm
⦁ płyt gipsowo-kartonowe (bez szpachlowania i malowania)
⦁ izolacją z wełny

IV: Dach
⦁ blachodachówka
⦁ łaty i kontrłaty
⦁ folia paroprzepuszczalna
⦁ konstrukcja drewniana /wg projektu/
⦁ wełna mineralna 30cm w przestrzeni między belkami
⦁ paroizolacja
⦁ ruszt
⦁ płyta KG
⦁ Orynnowanie PCV
⦁ komin murowany systemowy (elewacja z blachy)

cena 395tys brutto

DODATKOWE INFORMACJE

INSTALACJA ELEKTRYCZNA z kompletną skrzynką bezpiecznikową, na każde większe pomieszczenie przewidziane w cenie są 3 gniazdka, załącznik i punkt świetlny, instalację dzwonkową i jedno oświetlenie zewnętrzne nad wejściem.

INSTALACJA WODNO KANALIZACYJNA bez białego montażu, instalacja obejmuje zasilanie w wodę ciepłą i zimną oraz odpływy

WYLEWKA CEMENTOWA PARTERU OCIEPLONA na ociepleniu poziomym 15 cm

INSTALACJE CENTRALNEGO OGRZEWANIA rozprowadzenie rurek do grzejników z rozdzielacza plus piec grzewczy opcja z ogrzewaniem podłogowy dodatkowo płatna

DOMEK MIODOWY 68

Powierzchnia użytkowa 68m2

WERSJA STANDARD

I: Fundament
⦁ Wykonanie wykopu pod fundament
⦁ Wylanie ław fundamentowych.
⦁ Wykonanie ścian fundamentowych
⦁ Zasypka piaskowa
⦁ Chudy beton
⦁ Kanalizacja

II: Ściany zewnętrzne:
⦁ płyta farmacell
⦁ tynk silikatowo silikonowy
⦁ klej ,siatka zbrojąca
⦁ wełna
⦁ konstrukcja -drewno 4- stronnie strugane 4,5x 14,5
⦁ docieplenie: 15mm wełny mineralnej
⦁ paroizolacja
⦁ stolarka okienna PCV 3 szybowa
⦁ drzwi zewnętrzne
⦁ parapety zewnętrzne stalowe powlekane w kolorze dachu

III: Ściany wewnętrzne
⦁ drewniana konstrukcja ścian działowych 4,5x 9.5mm

IV: Dach
⦁ blachodachówka
⦁ łaty i kontrłaty
⦁ folia paroprzepuszczalna
⦁ konstrukcja drewniana /wg projektu/
⦁ wełna mineralna 30cm w przestrzeni między belkami
⦁ paroizolacja
⦁ Orynnowanie PCV
⦁ komin murowany systemowy (elewacja z blachy)

cena : 224tys brutto

WERSJA PREMIUM

I: Fundament
⦁ Wykonanie wykopu pod fundament
⦁ Wylanie ław fundamentowych.
⦁ Wykonanie ścian fundamentowych
⦁ Zasypka piaskowa
⦁ Chudy beton
⦁ Kanalizacja

II: Ściany zewnętrzne:
⦁ podwaliny
⦁ tynk silikatowo silikonowy
⦁ klej ,siatka zbrojąca
⦁ wełna
⦁ płyta farmacell
⦁ konstrukcja -drewno 4- stronnie strugane 4,5x 14,5
⦁ docieplenie: 15mm wełny mineralnej
⦁ paroizolacja
⦁ ruszt w nim instalacje
⦁ plyta KG
⦁ stolarka okienna PCV 3 szybowa
⦁ drzwi zewnętrzne
⦁ parapety zewnętrzne stalowe powlekane w kolorze dachu
⦁ parapety wewnętrzne drewniane

III: Ściany wewnętrzne
⦁ drewniana konstrukcja ścian działowych 4,5x 9.5mm
⦁ płyt gipsowo-kartonowe (bez szpachlowania i malowania)
⦁ izolacją z wełny

IV: Dach
⦁ blachodachówka
⦁ łaty i kontrłaty
⦁ folia paroprzepuszczalna
⦁ konstrukcja drewniana /wg projektu/
⦁ wełna mineralna 30cm w przestrzeni między belkami
⦁ paroizolacja
⦁ ruszt
⦁ płyta KG
⦁ Orynnowanie PCV
⦁ komin murowany systemowy (elewacja z blachy)

cena 346tys brutto

DODATKOWE INFORMACJE

INSTALACJA ELEKTRYCZNA z kompletną skrzynką bezpiecznikową, na każde większe pomieszczenie przewidziane w cenie są 3 gniazdka, załącznik i punkt świetlny, instalację dzwonkową i jedno oświetlenie zewnętrzne nad wejściem.

INSTALACJA WODNO KANALIZACYJNA bez białego montażu, instalacja obejmuje zasilanie w wodę ciepłą i zimną oraz odpływy

WYLEWKA CEMENTOWA PARTERU OCIEPLONA na ociepleniu poziomym 15 cm

INSTALACJE CENTRALNEGO OGRZEWANIA rozprowadzenie rurek do grzejników z rozdzielacza plus piec grzewczy

DOMEK PANI DARI 84

Powierzchnia użytkowa 84m2

WERSJA STANDARD

I: Fundament
⦁ Wykonanie wykopu pod fundament
⦁ Wylanie ław fundamentowych.
⦁ Wykonanie ścian fundamentowych
⦁ Zasypka piaskowa
⦁ Chudy beton
⦁ Kanalizacja

II: Ściany zewnętrzne:
⦁ płyta farmacell
⦁ tynk silikatowo silikonowy
⦁ klej ,siatka zbrojąca
⦁ wełna
⦁ konstrukcja -drewno 4- stronnie strugane 4,5x 14,5
⦁ docieplenie: 15mm wełny mineralnej
⦁ paroizolacja
⦁ stolarka okienna PCV 3 szybowa
⦁ drzwi zewnętrzne
⦁ parapety zewnętrzne stalowe powlekane w kolorze dachu

III: Ściany wewnętrzne
⦁ drewniana konstrukcja ścian działowych 4,5x 9.5mm

IV: Dach
⦁ blachodachówka
⦁ łaty i kontrłaty
⦁ folia paroprzepuszczalna
⦁ konstrukcja drewniana /wg projektu/
⦁ wełna mineralna 30cm w przestrzeni między belkami
⦁ paroizolacja
⦁ Orynnowanie PCV
⦁ komin murowany systemowy (elewacja z blachy )

cena : 272tys brutto

WERSJA PREMIUM

I: Fundament
⦁ Wykonanie wykopu pod fundament
⦁ Wylanie ław fundamentowych.
⦁ Wykonanie ścian fundamentowych
⦁ Zasypka piaskowa
⦁ Chudy beton
⦁ Kanalizacja

II: Ściany zewnętrzne:
⦁ podwaliny
⦁ tynk silikatowo silikonowy
⦁ klej ,siatka zbrojąca
⦁ wełna
⦁ płyta farmacell
⦁ konstrukcja -drewno 4- stronnie strugane 4,5x 14,5
⦁ docieplenie: 15mm wełny mineralnej
⦁ paroizolacja
⦁ ruszt w nim instalacje
⦁ plyta KG
⦁ stolarka okienna PCV 3 szybowa
⦁ drzwi zewnętrzne
⦁ parapety zewnętrzne stalowe powlekane w kolorze dachu
⦁ parapety wewnętrzne drewniane

III: Ściany wewnętrzne
⦁ drewniana konstrukcja ścian działowych 4,5x 9.5mm
⦁ płyt gipsowo-kartonowe (bez szpachlowania i malowania)
⦁ izolacją z wełny

IV: Dach
⦁ blachodachówka
⦁ łaty i kontrłaty
⦁ folia paroprzepuszczalna
⦁ konstrukcja drewniana /wg projektu/
⦁ wełna mineralna 30cm w przestrzeni między belkami
⦁ paroizolacja
⦁ ruszt
⦁ płyta KG
⦁ Orynnowanie PCV
⦁ komin murowany systemowy (elewacja z blachy)

cena 398tys brutto

DODATKOWE INFORMACJE

INSTALACJA ELEKTRYCZNA z kompletną skrzynką bezpiecznikową, na każde większe pomieszczenie przewidziane w cenie są 3 gniazdka, załącznik i punkt świetlny, instalację dzwonkową i jedno oświetlenie zewnętrzne nad wejściem.

INSTALACJA WODNO KANALIZACYJNA bez białego montażu, instalacja obejmuje zasilanie w wodę ciepłą i zimną oraz odpływy

WYLEWKA CEMENTOWA PARTERU OCIEPLONA na ociepleniu poziomym 15 cm

INSTALACJE CENTRALNEGO OGRZEWANIA rozprowadzenie rurek do grzejników z rozdzielacza plus piec grzewczy

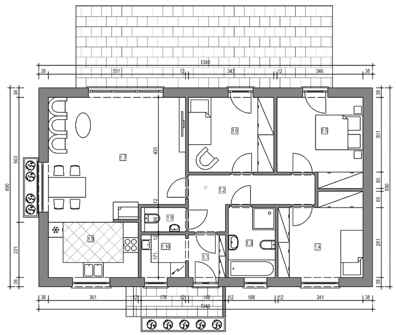
DOMEK MOKKA 114

Powierzchnia użytkowa 114m2

WERSJA STANDARD

I: Fundament
⦁ Wykonanie wykopu pod fundament
⦁ Wylanie ław fundamentowych.
⦁ Wykonanie ścian fundamentowych
⦁ Zasypka piaskowa
⦁ Chudy beton
⦁ Kanalizacja

II: Ściany zewnętrzne:
⦁ płyta farmacell
⦁ tynk silikatowo silikonowy
⦁ klej ,siatka zbrojąca
⦁ wełna
⦁ konstrukcja -drewno 4- stronnie strugane 4,5x 14,5
⦁ docieplenie: 15mm wełny mineralnej
⦁ paroizolacja
⦁ stolarka okienna PCV 3 szybowa
⦁ drzwi zewnętrzne
⦁ parapety zewnętrzne stalowe powlekane w kolorze dachu

III: Ściany wewnętrzne
⦁ drewniana konstrukcja ścian działowych 4,5x 9.5mm

IV: Dach
⦁ blachodachówka
⦁ łaty i kontrłaty
⦁ folia paroprzepuszczalna
⦁ konstrukcja drewniana /wg projektu/
⦁ wełna mineralna 30cm w przestrzeni między belkami
⦁ paroizolacja
⦁ Orynnowanie PCV
⦁ komin murowany systemowy (elewacja z blachy)

cena : 342tys brutto

WERSJA PREMIUM

I: Fundament
⦁ Wykonanie wykopu pod fundament
⦁ Wylanie ław fundamentowych.
⦁ Wykonanie ścian fundamentowych
⦁ Zasypka piaskowa
⦁ Chudy beton
⦁ Kanalizacja

II: Ściany zewnętrzne:
⦁ podwaliny
⦁ tynk silikatowo silikonowy
⦁ klej ,siatka zbrojąca
⦁ wełna
⦁ płyta farmacell
⦁ konstrukcja -drewno 4- stronnie strugane 4,5x 14,5
⦁ docieplenie: 15mm wełny mineralnej
⦁ paroizolacja
⦁ ruszt w nim instalacje
⦁ plyta KG
⦁ stolarka okienna PCV 3 szybowa
⦁ drzwi zewnętrzne
⦁ parapety zewnętrzne stalowe powlekane w kolorze dachu
⦁ parapety wewnętrzne drewniane

III: Ściany wewnętrzne
⦁ drewniana konstrukcja ścian działowych 4,5x 9.5mm
⦁ płyt gipsowo-kartonowe (bez szpachlowania i malowania)
⦁ izolacją z wełny

IV: Dach
⦁ blachodachówka
⦁ łaty i kontrłaty
⦁ folia paroprzepuszczalna
⦁ konstrukcja drewniana /wg projektu/
⦁ wełna mineralna 30cm w przestrzeni między belkami
⦁ paroizolacja
⦁ ruszt
⦁ płyta KG
⦁ Orynnowanie PCV
⦁ komin murowany systemowy (elewacja z blachy)

cena 460tys brutto

DODATKOWE INFORMACJE

INSTALACJA ELEKTRYCZNA z kompletną skrzynką bezpiecznikową, na każde większe pomieszczenie przewidziane w cenie są 3 gniazdka, załącznik i punkt świetlny, instalację dzwonkową i jedno oświetlenie zewnętrzne nad wejściem.

INSTALACJA WODNO KANALIZACYJNA bez białego montażu, instalacja obejmuje zasilanie w wodę ciepłą i zimną oraz odpływy

WYLEWKA CEMENTOWA PARTERU OCIEPLONA na ociepleniu poziomym 15 cm

INSTALACJE CENTRALNEGO OGRZEWANIA rozprowadzenie rurek do grzejników z rozdzielacza plus piec grzewczy

DOMEK PIASTOWSKI 85

Powierzchnia użytkowa 85m2

WERSJA STANDARD

I: Fundament
⦁ Wykonanie wykopu pod fundament
⦁ Wylanie ław fundamentowych.
⦁ Wykonanie ścian fundamentowych
⦁ Zasypka piaskowa
⦁ Chudy beton
⦁ Kanalizacja

II: Ściany zewnętrzne:
⦁ tynk silikatowo silikonowy
⦁ klej ,siatka zbrojąca
⦁ wełna
⦁ płyta farmacell
⦁ konstrukcja -drewno 4- stronnie strugane 4,5x 14,5
⦁ docieplenie: 15mm wełny mineralnej
⦁ paroizolacja
⦁ stolarka okienna PCV 3 szybowa
⦁ drzwi zewnętrzne
⦁ parapety zewnętrzne stalowe powlekane w kolorze dachu

III: Ściany wewnętrzne
⦁ drewniana konstrukcja ścian działowych 4,5x 9.5mm

IV: Dach
⦁ blachodachówka
⦁ łaty i kontrłaty
⦁ folia paroprzepuszczalna
⦁ konstrukcja drewniana /wg projektu/
⦁ wełna mineralna 30cm w przestrzeni między belkami
⦁ paroizolacja
⦁ Orynnowanie PCV
⦁ komin murowany systemowy (elewacja z blachy)

cena : 275tys brutto

WERSJA PREMIUM

I: Fundament
⦁ Wykonanie wykopu pod fundament
⦁ Wylanie ław fundamentowych.
⦁ Wykonanie ścian fundamentowych
⦁ Zasypka piaskowa
⦁ Chudy beton
⦁ Kanalizacja

II: Ściany zewnętrzne:
⦁ podwaliny
⦁ tynk silikatowo silikonowy
⦁ klej ,siatka zbrojąca
⦁ wełna
⦁ płyta farmacell
⦁ konstrukcja -drewno 4- stronnie strugane 4,5x 14,5
⦁ docieplenie: 15mm wełny mineralnej
⦁ paroizolacja
⦁ ruszt w nim instalacje
⦁ plyta KG
⦁ stolarka okienna PCV 3 szybowa
⦁ drzwi zewnętrzne
⦁ parapety zewnętrzne stalowe powlekane w kolorze dachu
⦁ parapety wewnętrzne drewniane

III: Ściany wewnętrzne
⦁ drewniana konstrukcja ścian działowych 4,5x 9.5mm
⦁ płyt gipsowo-kartonowe (bez szpachlowania i malowania)
⦁ izolacją z wełny

IV: Dach
⦁ blachodachówka
⦁ łaty i kontrłaty
⦁ folia paroprzepuszczalna
⦁ konstrukcja drewniana /wg projektu/
⦁ wełna mineralna 30cm w przestrzeni między belkami
⦁ paroizolacja
⦁ ruszt
⦁ płyta KG
⦁ Orynnowanie PCV
⦁ komin murowany systemowy (elewacja z blachy)

cena 398tys brutto

DODATKOWE INFORMACJE

INSTALACJA ELEKTRYCZNA z kompletną skrzynką bezpiecznikową, na każde większe pomieszczenie przewidziane w cenie są 3 gniazdka, załącznik i punkt świetlny, instalację dzwonkową i jedno oświetlenie zewnętrzne nad wejściem.

INSTALACJA WODNO KANALIZACYJNA bez białego montażu, instalacja obejmuje zasilanie w wodę ciepłą i zimną oraz odpływy

WYLEWKA CEMENTOWA PARTERU OCIEPLONA na ociepleniu poziomym 15 cm

INSTALACJE CENTRALNEGO OGRZEWANIA rozprowadzenie rurek do grzejników z rozdzielacza plus piec grzewczy

DOMEK MIODOWY 70

Powierzchnia użytkowa 70m2

WERSJA STANDARD

I: Fundament
⦁ Wykonanie wykopu pod fundament
⦁ Wylanie ław fundamentowych.
⦁ Wykonanie ścian fundamentowych
⦁ Zasypka piaskowa
⦁ Chudy beton
⦁ Kanalizacja

II: Ściany zewnętrzne:
⦁ tynk silikatowo silikonowy
⦁ klej ,siatka zbrojąca
⦁ wełna
⦁ płyta farmacell
⦁ konstrukcja -drewno 4- stronnie strugane 4,5x 14,5
⦁ docieplenie: 15mm wełny mineralnej
⦁ paroizolacja
⦁ stolarka okienna PCV 3 szybowa
⦁ drzwi zewnętrzne
⦁ parapety zewnętrzne stalowe powlekane w kolorze dachu

III: Ściany wewnętrzne
⦁ drewniana konstrukcja ścian działowych 4,5x 9.5mm

IV: Dach
⦁ blachodachówka
⦁ łaty i kontrłaty
⦁ folia paroprzepuszczalna
⦁ konstrukcja drewniana /wg projektu/
⦁ wełna mineralna 30cm w przestrzeni między belkami
⦁ paroizolacja
⦁ Orynnowanie PCV
⦁ komin murowany systemowy (elewacja z blachy)

cena : 230tys brutto

WERSJA PREMIUM

I: Fundament
⦁ Wykonanie wykopu pod fundament
⦁ Wylanie ław fundamentowych.
⦁ Wykonanie ścian fundamentowych
⦁ Zasypka piaskowa
⦁ Chudy beton
⦁ Kanalizacja

II: Ściany zewnętrzne:
⦁ podwaliny
⦁ tynk silikatowo silikonowy
⦁ klej ,siatka zbrojąca
⦁ wełna
⦁ płyta farmacell
⦁ konstrukcja -drewno 4- stronnie strugane 4,5x 14,5
⦁ docieplenie: 15mm wełny mineralnej
⦁ paroizolacja
⦁ ruszt w nim instalacje
⦁ plyta KG
⦁ stolarka okienna PCV 3 szybowa
⦁ drzwi zewnętrzne
⦁ parapety zewnętrzne stalowe powlekane w kolorze dachu
⦁ parapety wewnętrzne drewniane

III: Ściany wewnętrzne
⦁ drewniana konstrukcja ścian działowych 4,5x 9.5mm
⦁ płyt gipsowo-kartonowe (bez szpachlowania i malowania)
⦁ izolacją z wełny

IV: Dach
⦁ blachodachówka
⦁ łaty i kontrłaty
⦁ folia paroprzepuszczalna
⦁ konstrukcja drewniana /wg projektu/
⦁ wełna mineralna 30cm w przestrzeni między belkami
⦁ paroizolacja
⦁ ruszt
⦁ płyta KG
⦁ Orynnowanie PCV
⦁ komin murowany systemowy (elewacja z blachy)

cena 350tys brutto

DODATKOWE INFORMACJE

INSTALACJA ELEKTRYCZNA z kompletną skrzynką bezpiecznikową, na każde większe pomieszczenie przewidziane w cenie są 3 gniazdka, załącznik i punkt świetlny, instalację dzwonkową i jedno oświetlenie zewnętrzne nad wejściem.

INSTALACJA WODNO KANALIZACYJNA bez białego montażu, instalacja obejmuje zasilanie w wodę ciepłą i zimną oraz odpływy

WYLEWKA CEMENTOWA PARTERU OCIEPLONA na ociepleniu poziomym 15 cm

INSTALACJE CENTRALNEGO OGRZEWANIA rozprowadzenie rurek do grzejników z rozdzielacza plus piec grzewczy

DOMEK MIODOWY M70d

Powierzchnia użytkowa 70m2

WERSJA STANDARD

I: Fundament
⦁ Wykonanie wykopu pod fundament
⦁ Wylanie ław fundamentowych.
⦁ Wykonanie ścian fundamentowych
⦁ Zasypka piaskowa
⦁ Chudy beton
⦁ Kanalizacja

II: Ściany zewnętrzne:
⦁ tynk silikatowo silikonowy
⦁ klej ,siatka zbrojąca
⦁ wełna
⦁ płyta farmacell
⦁ konstrukcja -drewno 4- stronnie strugane 4,5x 14,5
⦁ docieplenie: 15mm wełny mineralnej
⦁ paroizolacja
⦁ stolarka okienna PCV 3 szybowa
⦁ drzwi zewnętrzne
⦁ parapety zewnętrzne stalowe powlekane w kolorze dachu

III: Ściany wewnętrzne
⦁ drewniana konstrukcja ścian działowych 4,5x 9.5mm

IV: Dach
⦁ blachodachówka
⦁ łaty i kontrłaty
⦁ folia paroprzepuszczalna
⦁ konstrukcja drewniana /wg projektu/
⦁ wełna mineralna 30cm w przestrzeni między belkami
⦁ paroizolacja
⦁ Orynnowanie PCV
⦁ komin murowany systemowy (elewacja z blachy)

cena : 230tys brutto

WERSJA PREMIUM

I: Fundament
⦁ Wykonanie wykopu pod fundament
⦁ Wylanie ław fundamentowych.
⦁ Wykonanie ścian fundamentowych
⦁ Zasypka piaskowa
⦁ Chudy beton
⦁ Kanalizacja

II: Ściany zewnętrzne:
⦁ podwaliny
⦁ tynk silikatowo silikonowy
⦁ klej ,siatka zbrojąca
⦁ wełna
⦁ płyta farmacell
⦁ konstrukcja -drewno 4- stronnie strugane 4,5x 14,5
⦁ docieplenie: 15mm wełny mineralnej
⦁ paroizolacja
⦁ ruszt w nim instalacje
⦁ plyta KG
⦁ stolarka okienna PCV 3 szybowa
⦁ drzwi zewnętrzne
⦁ parapety zewnętrzne stalowe powlekane w kolorze dachu
⦁ parapety wewnętrzne drewniane

III: Ściany wewnętrzne
⦁ drewniana konstrukcja ścian działowych 4,5x 9.5mm
⦁ płyt gipsowo-kartonowe (bez szpachlowania i malowania)
⦁ izolacją z wełny

IV: Dach
⦁ blachodachówka
⦁ łaty i kontrłaty
⦁ folia paroprzepuszczalna
⦁ konstrukcja drewniana /wg projektu/
⦁ wełna mineralna 30cm w przestrzeni między belkami
⦁ paroizolacja
⦁ ruszt
⦁ płyta KG
⦁ Orynnowanie PCV
⦁ komin murowany systemowy (elewacja z blachy)

cena 340tys brutto

DODATKOWE INFORMACJE

INSTALACJA ELEKTRYCZNA z kompletną skrzynką bezpiecznikową, na każde większe pomieszczenie przewidziane w cenie są 3 gniazdka, załącznik i punkt świetlny, instalację dzwonkową i jedno oświetlenie zewnętrzne nad wejściem.

INSTALACJA WODNO KANALIZACYJNA bez białego montażu, instalacja obejmuje zasilanie w wodę ciepłą i zimną oraz odpływy

WYLEWKA CEMENTOWA PARTERU OCIEPLONA na ociepleniu poziomym 15 cm

INSTALACJE CENTRALNEGO OGRZEWANIA rozprowadzenie rurek do grzejników z rozdzielacza plus piec grzewczy

DOMEK MIODOWY 57

Powierzchnia użytkowa 57m2

WERSJA STANDARD

I: Fundament
⦁ Wykonanie wykopu pod fundament
⦁ Wylanie ław fundamentowych.
⦁ Wykonanie ścian fundamentowych
⦁ Zasypka piaskowa
⦁ Chudy beton
⦁ Kanalizacja

II: Ściany zewnętrzne:
⦁ tynk silikatowo silikonowy
⦁ klej ,siatka zbrojąca
⦁ wełna
⦁ płyta farmacell
⦁ konstrukcja -drewno 4- stronnie strugane 4,5x 14,5
⦁ docieplenie: 15mm wełny mineralnej
⦁ paroizolacja
⦁ stolarka okienna PCV 3 szybowa
⦁ drzwi zewnętrzne
⦁ parapety zewnętrzne stalowe powlekane w kolorze dachu

III: Ściany wewnętrzne
⦁ drewniana konstrukcja ścian działowych 4,5x 9.5mm

IV: Dach
⦁ blachodachówka
⦁ łaty i kontrłaty
⦁ folia paroprzepuszczalna
⦁ konstrukcja drewniana /wg projektu/
⦁ wełna mineralna 30cm w przestrzeni między belkami
⦁ paroizolacja
⦁ Orynnowanie PCV
⦁ komin murowany systemowy (elewacj z blachy)

cena : 215tys brutto

WERSJA PREMIUM

I: Fundament
⦁ Wykonanie wykopu pod fundament
⦁ Wylanie ław fundamentowych.
⦁ Wykonanie ścian fundamentowych
⦁ Zasypka piaskowa
⦁ Chudy beton
⦁ Kanalizacja

II: Ściany zewnętrzne:
⦁ podwaliny
⦁ tynk silikatowo silikonowy
⦁ klej ,siatka zbrojąca
⦁ wełna
⦁ płyta farmacell
⦁ konstrukcja -drewno 4- stronnie strugane 4,5x 14,5
⦁ docieplenie: 15mm wełny mineralnej
⦁ paroizolacja
⦁ ruszt w nim instalacje
⦁ plyta KG
⦁ stolarka okienna PCV 3 szybowa
⦁ drzwi zewnętrzne
⦁ parapety zewnętrzne stalowe powlekane w kolorze dachu
⦁ parapety wewnętrzne drewniane

III: Ściany wewnętrzne
⦁ drewniana konstrukcja ścian działowych 4,5x 9.5mm
⦁ płyt gipsowo-kartonowe (bez szpachlowania i malowania)
⦁ izolacją z wełny

IV: Dach
⦁ blachodachówka
⦁ łaty i kontrłaty
⦁ folia paroprzepuszczalna
⦁ konstrukcja drewniana /wg projektu/
⦁ wełna mineralna 30cm w przestrzeni między belkami
⦁ paroizolacja
⦁ ruszt
⦁ płyta KG
⦁ Orynnowanie PCV
⦁ komin murowany systemowy (elewacja tynk)

cena 295tys brutto

DODATKOWE INFORMACJE

INSTALACJA ELEKTRYCZNA z kompletną skrzynką bezpiecznikową, na każde większe pomieszczenie przewidziane w cenie są 3 gniazdka, załącznik i punkt świetlny, instalację dzwonkową i jedno oświetlenie zewnętrzne nad wejściem.

INSTALACJA WODNO KANALIZACYJNA bez białego montażu, instalacja obejmuje zasilanie w wodę ciepłą i zimną oraz odpływy

WYLEWKA CEMENTOWA PARTERU OCIEPLONA na ociepleniu poziomym 15 cm

INSTALACJE CENTRALNEGO OGRZEWANIA rozprowadzenie rurek do grzejników z rozdzielacza plus piec grzewczy

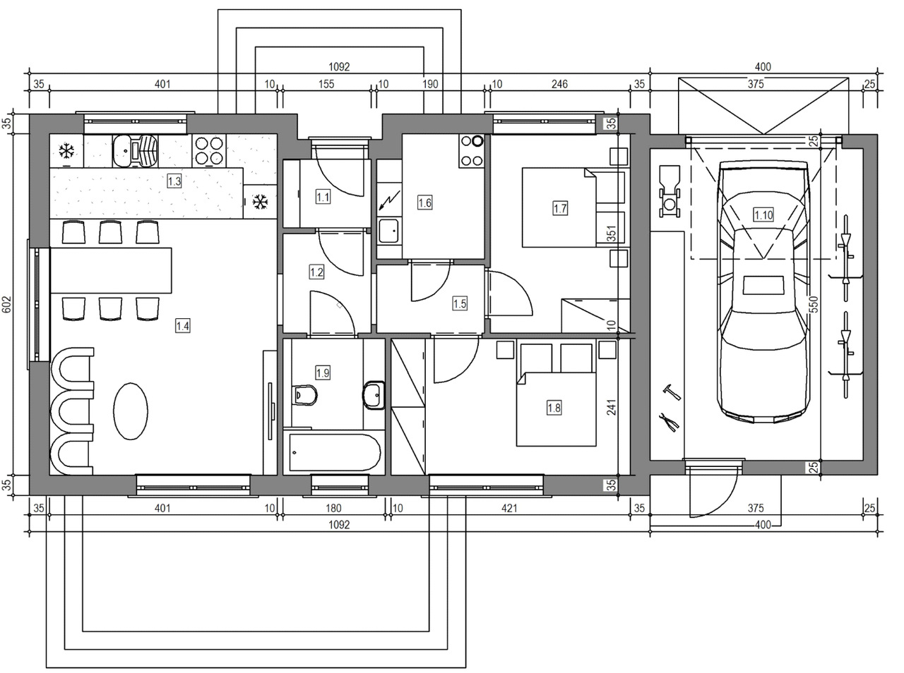
DOMEK MIODOWY 57 + garaż 21

Powierzchnia użytkowa 57m2 + 21m2 garaż

WERSJA STANDARD

I: Fundament
⦁ Wykonanie wykopu pod fundament
⦁ Wylanie ław fundamentowych.
⦁ Wykonanie ścian fundamentowych
⦁ Zasypka piaskowa
⦁ Chudy beton
⦁ Kanalizacja

II: Ściany zewnętrzne:
⦁ tynk silikatowo silikonowy
⦁ klej ,siatka zbrojąca
⦁ wełna
⦁ płyta farmacell
⦁ konstrukcja -drewno 4- stronnie strugane 4,5x 14,5
⦁ docieplenie: 15mm wełny mineralnej
⦁ paroizolacja
⦁ stolarka okienna PCV 3 szybowa
⦁ drzwi zewnętrzne
⦁ parapety zewnętrzne stalowe powlekane w kolorze dachu

III: Ściany wewnętrzne
⦁ drewniana konstrukcja ścian działowych 4,5x 9.5mm
IV: Dach
⦁ blachodachówka
⦁ łaty i kontrłaty
⦁ folia paroprzepuszczalna
⦁ konstrukcja drewniana /wg projektu/
⦁ wełna mineralna 30cm w przestrzeni między belkami
⦁ paroizolacja
⦁ Orynnowanie PCV
⦁ komin murowany systemowy (elewacja z blachy)

V: Garaż
⦁ podwaliny
⦁ tynk silikatowo silikonowy
⦁ klej ,siatka zbrojąca
⦁ styropian 5 cm
⦁ płyta farmacell
⦁ konstrukcja -drewno 4- stronnie strugane 4,5x 14,5
⦁ docieplenie: 15mm wełny mineralnej
⦁ brama garażowa

cena : 245tys brutto

WERSJA PREMIUM

I: Fundament
⦁ Wykonanie wykopu pod fundament
⦁ Wylanie ław fundamentowych.
⦁ Wykonanie ścian fundamentowych
⦁ Zasypka piaskowa
⦁ Chudy beton
⦁ Kanalizacja

II: Ściany zewnętrzne:
⦁ podwaliny
⦁ tynk silikatowo silikonowy
⦁ klej ,siatka zbrojąca
⦁ wełna
⦁ płyta farmacell
⦁ konstrukcja -drewno 4- stronnie strugane 4,5x 14,5
⦁ docieplenie: 15mm wełny mineralnej
⦁ paroizolacja
⦁ ruszt w nim instalacje
⦁ plyta KG
⦁ stolarka okienna PCV 3 szybowa
⦁ drzwi zewnętrzne
⦁ parapety zewnętrzne stalowe powlekane w kolorze dachu
⦁ parapety wewnętrzne drewniane

III: Ściany wewnętrzne
⦁ drewniana konstrukcja ścian działowych 4,5x 9.5mm
⦁ płyt gipsowo-kartonowe (bez szpachlowania i malowania)
⦁ izolacją z wełny

IV: Dach
⦁ blachodachówka
⦁ łaty i kontrłaty
⦁ folia paroprzepuszczalna
⦁ konstrukcja drewniana /wg projektu/
⦁ wełna mineralna 30cm w przestrzeni między belkami
⦁ paroizolacja
⦁ ruszt
⦁ płyta KG
⦁ Orynnowanie PCV
⦁ komin murowany systemowy (elewacja z blachy)

V: Garaż
⦁ podwaliny
⦁ tynk silikatowo silikonowy
⦁ klej ,siatka zbrojąca
⦁ styropian 5 cm
⦁ płyta farmacell
⦁ konstrukcja -drewno 4- stronnie strugane 4,5x 14,5
⦁ docieplenie: 15mm wełny mineralnej
⦁ paroizolacja
⦁ ruszt w nim instalacje
⦁ plyta KG
⦁ brama garażowa

cena 345tys brutto

DODATKOWE INFORMACJE

INSTALACJA ELEKTRYCZNA z kompletną skrzynką bezpiecznikową, na każde większe pomieszczenie przewidziane w cenie są 3 gniazdka, załącznik i punkt świetlny, instalację dzwonkową i jedno oświetlenie zewnętrzne nad wejściem.

INSTALACJA WODNO KANALIZACYJNA bez białego montażu, instalacja obejmuje zasilanie w wodę ciepłą i zimną oraz odpływy

WYLEWKA CEMENTOWA PARTERU OCIEPLONA na ociepleniu poziomym 15 cm

INSTALACJE CENTRALNEGO OGRZEWANIA rozprowadzenie rurek do grzejników z rozdzielacza plus piec grzewczy

UWAGA WYCENY SĄ BEZ PROJEKTÓW I UZGODNIEŃ BUDOWLANYCH!